B-A7 | Troiposoban
Kontaktirajte nas
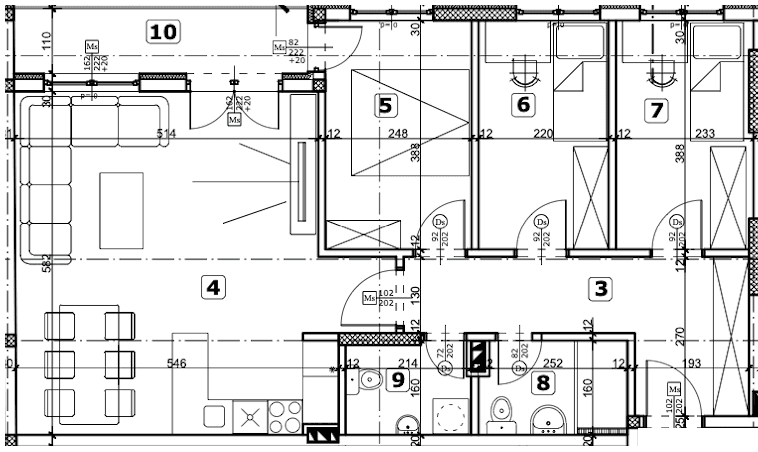
B-A7 - A Ulaz - Drugi Sprat
POČETNA
INVESTITOR
LOKACIJA
STANOVI
GALERIJA
Kontakt
+381 61 608 0807
info@elmaglux.rs
Katalog Stanova
Lamela A (24)
Lamela B (29)
Lamela C (20)
A1
dostupan
A2
dostupan
A3
prodat
A4
dostupan
A5
dostupan
A6
dostupan
A7
dostupan
A8
prodat
A9
dostupan
A10
prodat
A11
dostupan
A12
dostupan
A13
dostupan
A14
dostupan
A15
dostupan
A16
dostupan
A17
dostupan
A18
dostupan
A19
dostupan
A20
dostupan
A21
dostupan
A22
dostupan
A23
dostupan
A24
dostupan