Kontaktirajte nas
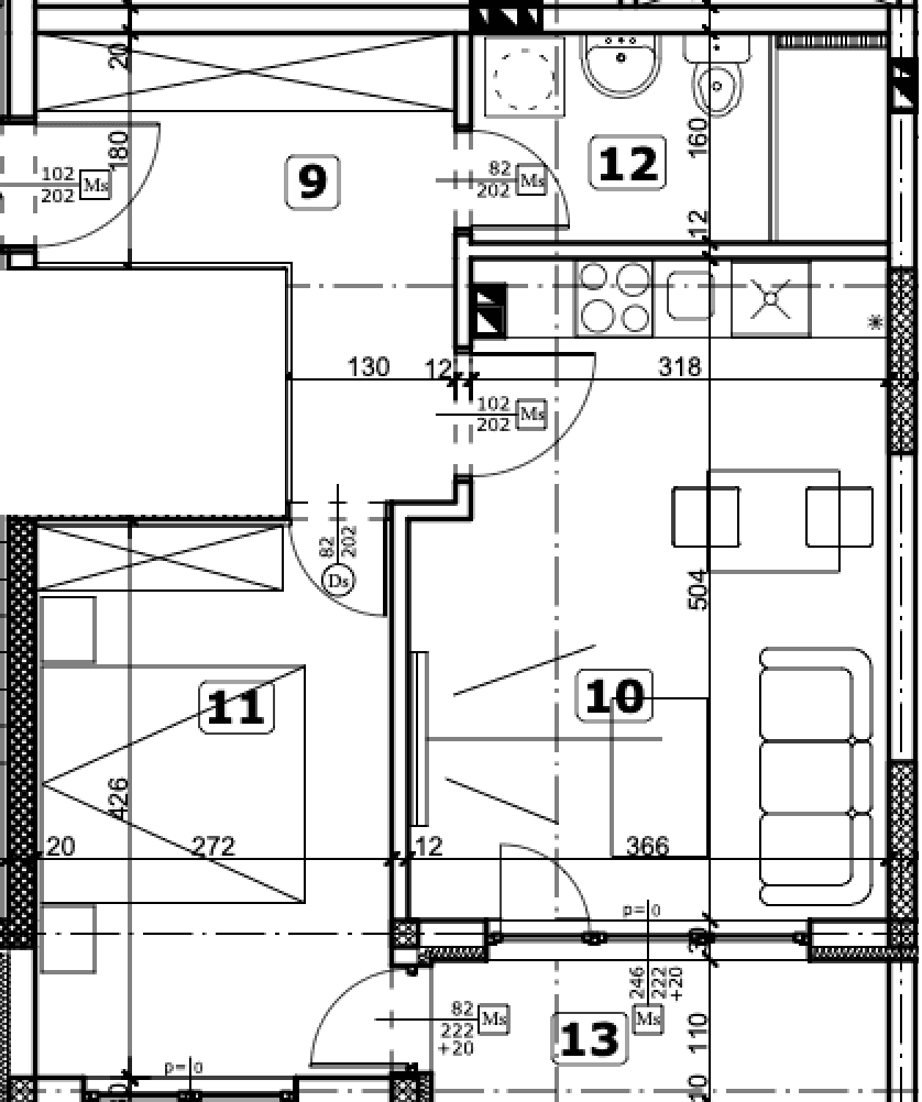
B-A12 - A Ulaz - Povučen Sprat
POČETNA
INVESTITOR
LOKACIJA
STANOVI
GALERIJA
Kontakt